Добро пожаловать на http://vipplan.ru

Випплан Коркино - это тысячи проектов домов в нашем каталоге!

Вы всегда сможете найти для себя проект дома вашей мечты! Даже если этого не случилось, мы готовы в любую минуту предложить проект индивидуального дома.

Забыли пароль?
Вы еще не регистрировались?

Перейдите по ссылке ниже на страницу регистрации.

Регистрация...

Внимание!!!

В проектную документацию могут быть внесены изменения любой сложности, в соответствии в Вашими пожеланиями!

Полезные статьи

Выбор бригады строителей в Коркине

Перед началом строительства дома перед будущим хозяином загородной недвижимости в Челябинской области обозначится несколько вариантов: обратиться в строительную компанию, специализирующуюся на малоэтажном коттеджном строительстве, воспользоваться услугами частной бригады; строить самому "своими руками"....

Системы утепления фасада

Основные тепловые потери происходят через стены, фундамент и крышу. Уменьшить их можно с помощью утеплителя, создав внутри дома оптимальный для жизни климат, с достаточно ровным температурным режимом и низкой влажностью....

Проекты домов и коттеджей > Каталог проектов домов > Проект двухэтажного дома с необычной террасой Vg1041

Проект двухэтажного дома с необычной террасой Vg1041

Проект двухэтажного дома с необычной террасой
Зарегистрируйтесь

Проект № Vg1041


Техническое описание
Общая площадь: 150.87 м2
Жилая площадь: 68.82 м2
Высота здания: 9.13 м
Размеры дома: 10.4м×19.1м
Кол-во комнат: 5
Цокольный этаж: нет
Гараж: нет
Мансарда: нет

Kонструкция
Фундамент: Ленточный
Перекрытия: Деревянные балки
Материал стен: Газобетон

Архитектурный раздел
Конструктивный раздел
Инженерный раздел
АР+КР - 56 000 (Со скидкой 20%)
АР+КР+ИР - 108 850 (Со скидкой 50%)
Проект индивидуального двухэтажного жилого дома с размерами здания 10,40 x 19,10 м. Наружная отделка здания – штукатурка. Фундамент – ленточный монолитный ж/б под несущими стенами. Наружные стены – из газобетонного блока с утеплением экструдированным пенополистиролом и облицовкой штукатуркой. Внутренние стены - из газобетонного блока. Перегородки 1 этажа – из газобетонного блока, 2 этажа — каркасные с ГКЛ. Пол первого этажа — пол по грунту. Межэтажное и чердачное перекрытие - деревянные балки. Крыша многоскатная. Кровля – андулин. Окна — металлопластиковые.
Генплан застройки участка / Паспорт проекта 7000 руб / 10000 руб
Инженерный раздел (полный) 52850 руб (75500 руб)
Смета на строительство 37750 руб
Теплотехнический расчет материалов стен Бесплатно
Стоимость проекта со незначительнми изменениями 66200 руб
Стоимость проекта со средними изменениями* 77600 руб
Стоимость проекта со значительными изменениями** 80600 руб

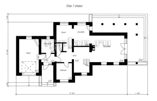
План первого этажа


Тамбур - 3,33 м2
Холл - 14,81 м2
Кухня - 10,48 м2
Столовая - 10,26 м2
Гостиная - 26,56 м2
Кабинет - 7,70 м2
Бойлерная - 5,35 м2
Гараж - 19,72 м2

Проект двухэтажного дома с необычной террасой

Проект двухэтажного дома с необычной террасой

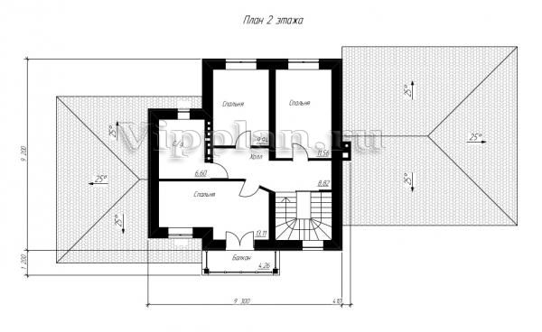
План второго этажа


Холл - 8,82 м2
Спальня - 13,11 м2
С/у - 6,60 м2
Спальня - 9,94 м2
Спальня - 11,56 м2
Проект двухэтажного дома с необычной террасой Проект двухэтажного дома с необычной террасой Проект двухэтажного дома с необычной террасой Проект двухэтажного дома с необычной террасой

Модификации проектов

Внесение изменений и привязка к участку строительства

В любой из проектов от компании VIPplan - Коркино по вашему желанию могут быть внесены изменения в материалы стен, материалы наружной отделки дома, а также будет произведена адаптация проекта под конкретный регион строительства (с учетом грунтов региона, геологических особенностей вашего участка и местных климатических условий) - БЕСПЛАТНО !!! (кроме проектов со скидкой и проектов наших партнеров).

Любой из проектов, размещенных на сайте korkino.vipplan.ru мы можем выполнить из требуемых вам строительных материалов: ячеистый бетон (газобетон, пеноблок), керамоблок, кирпич, шлакоблок, бетонный блок, дерево (брус, клееный брус), каркасная технология (деревянный каркас, металлокаркас (ЛСТК)).

Фасад дома и его наружную отделку так же возможно выполнить с применением различных облицовочных материалов: структурной штукатурки, (с утеплителем и без), сайдингом (пластиковый или металлосайдинг), фиброплитами, кирпича.

 
6 Избранные
проекты

Доставка проектов по России: Москва (Московская область), Санкт-Петербург (Ленинградская область), Краснодар, Ростов-на-Дону, Ставрополь, Сочи, Волгоград, Новосибирск, Белгород, Брянск, Воронеж, Саратов, Хабаровск, Астрахань, Нальчик, Владикавказ, Екатеринбург, Тюмень, Самара, Нижний Новгород, Казань, Пермь, Уфа, Челябинск, Красноярск, Ханты-Мансийск, Иркутск, Курган, Оренбург, Омск, Томск, Барнаул, Новокузнецк, Кемерово, Абакан, Чита, Якутск, Южно-Сахалинск, Петропавловск-Камчатский и страны ближнего зарубежья: Белоруссия, Украина, Казахстан