Добро пожаловать на http://vipplan.ru

Випплан Коркино - это тысячи проектов домов в нашем каталоге!

Вы всегда сможете найти для себя проект дома вашей мечты! Даже если этого не случилось, мы готовы в любую минуту предложить проект индивидуального дома.

Забыли пароль?
Вы еще не регистрировались?

Перейдите по ссылке ниже на страницу регистрации.

Регистрация...

Внимание!!!

В проектную документацию могут быть внесены изменения любой сложности, в соответствии в Вашими пожеланиями!

Полезные статьи

Выбор проекта дома (площадь, этажность - 1 или 2 этажа)

Для того что бы выбрать проект дома, предварительно необходимо определиться, какой будет площадь будущего дома (решение зависит от количества человек, планирующих постоянно в нем проживать), количество спален, санузлов и ванных комнат, компоновка дома, одноэтажный, масардный или двухэтажный дом (зависит от площади участка и предпочтений будущих хозяев) ...

Вентиляция в подвале дома

Без подвала или цокольного этажа в частном доме, в наше время, не обойтись. Это полезное для дома помещение должно быть хорошо вентилируемым. В доме с подвалом должна быть хорошая циркуляция воздуха, для сохранения находящихся в нем продуктов. Отсутствие вентиляции  может привести к образованию плесени и сырости не только в подвале, но и во всем доме....

Проекты домов и коттеджей > Каталог проектов домов > Проект комфортного коттеджа Vg1170

Проект комфортного коттеджа Vg1170

Проект комфортного коттеджа
Зарегистрируйтесь

Проект № Vg1170


Техническое описание
Общая площадь: 199.16 м2
Жилая площадь: 113.03 м2
Высота здания: 9.33 м
Размеры дома: 15.88м×13.48м
Кол-во комнат: 5
Цокольный этаж: нет
Гараж: нет
Мансарда: есть

Kонструкция
Фундамент: Монолитный ж/б щелевой
Перекрытия: Сборные плиты
Материал стен: Газобетон

Архитектурный раздел
Конструктивный раздел
Инженерный раздел
АР+КР - 60 000 (Со скидкой 20%)
АР+КР+ИР - 129 650 (Со скидкой 50%)
Проект индивидуального одноэтажного жилого дома с мансардой с размерами 15.88 x 13.48 м. Наружная отделка здания – облицовочный кирпич. Отделка цоколя – клинкерная плитка. Фундамент – монолитный ж/б «щелевой» (ленточный под несущими стенами). Наружные стены запроектированы из газосиликатных блоков с воздушным зазором и отделкой облицовочным кирпичом. Внутренние стены – из газосиликатных блоков. Перегородки – из забутовочного кирпича. Пол 1-го этажа – пол по грунту. Перекрытие межэтажное – сборные плиты перекрытия. Перекрытие чердачное – по деревянным балкам с использованием теплошумоизоляционных материалов. Крыша - многоскатная. Материал кровли – битумная черепица. Окна - металлопластиковые, выполненные по индивидуальному заказу.
Генплан застройки участка / Паспорт проекта 7000 руб / 10000 руб
Инженерный раздел (полный) 69650 руб (99500 руб)
Смета на строительство 49750 руб
Теплотехнический расчет материалов стен Бесплатно
Стоимость проекта со незначительнми изменениями 70000 руб
Стоимость проекта со средними изменениями* 85000 руб
Стоимость проекта со значительными изменениями** 88900 руб

План первого этажа


Тамбур - 4,80 м2
Холл - 14,61 м2
Кухн-гост - 46,78 м2
Спальня - 11,16 м2
С/у - 4,49 м2
Бойлерная - 6,97 м2
Гараж - 29,67 м2

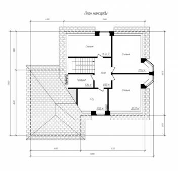
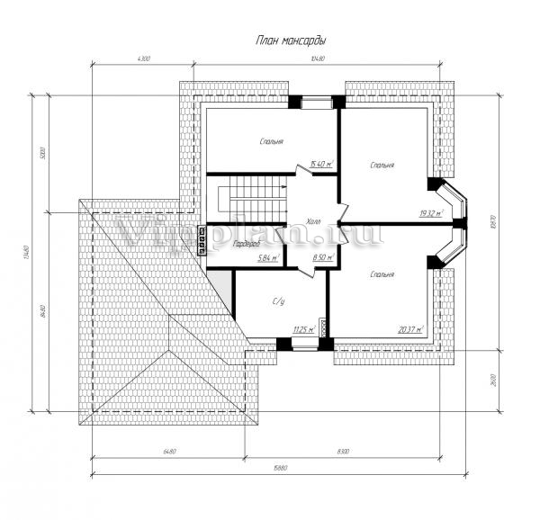
План мансардного этажа


Холл - 8,50 м2
Спальня - 15,40 м2
Спальня - 19,32 м2
Спальня - 20,37 м2
С/у - 11,25 м2
Гардероб - 5,84 м2
Проект комфортного коттеджа Проект комфортного коттеджа Проект комфортного коттеджа Проект комфортного коттеджа

Модификации проектов

Внесение изменений и привязка к участку строительства

В любой из проектов от компании VIPplan - Коркино по вашему желанию могут быть внесены изменения в материалы стен, материалы наружной отделки дома, а также будет произведена адаптация проекта под конкретный регион строительства (с учетом грунтов региона, геологических особенностей вашего участка и местных климатических условий) - БЕСПЛАТНО !!! (кроме проектов со скидкой и проектов наших партнеров).

Любой из проектов, размещенных на сайте korkino.vipplan.ru мы можем выполнить из требуемых вам строительных материалов: ячеистый бетон (газобетон, пеноблок), керамоблок, кирпич, шлакоблок, бетонный блок, дерево (брус, клееный брус), каркасная технология (деревянный каркас, металлокаркас (ЛСТК)).

Фасад дома и его наружную отделку так же возможно выполнить с применением различных облицовочных материалов: структурной штукатурки, (с утеплителем и без), сайдингом (пластиковый или металлосайдинг), фиброплитами, кирпича.

 
6 Избранные
проекты

Доставка проектов по России: Москва (Московская область), Санкт-Петербург (Ленинградская область), Краснодар, Ростов-на-Дону, Ставрополь, Сочи, Волгоград, Новосибирск, Белгород, Брянск, Воронеж, Саратов, Хабаровск, Астрахань, Нальчик, Владикавказ, Екатеринбург, Тюмень, Самара, Нижний Новгород, Казань, Пермь, Уфа, Челябинск, Красноярск, Ханты-Мансийск, Иркутск, Курган, Оренбург, Омск, Томск, Барнаул, Новокузнецк, Кемерово, Абакан, Чита, Якутск, Южно-Сахалинск, Петропавловск-Камчатский и страны ближнего зарубежья: Белоруссия, Украина, Казахстан