Добро пожаловать на http://vipplan.ru

Випплан Коркино - это тысячи проектов домов в нашем каталоге!

Вы всегда сможете найти для себя проект дома вашей мечты! Даже если этого не случилось, мы готовы в любую минуту предложить проект индивидуального дома.

Забыли пароль?
Вы еще не регистрировались?

Перейдите по ссылке ниже на страницу регистрации.

Регистрация...

Внимание!!!

В проектную документацию могут быть внесены изменения любой сложности, в соответствии в Вашими пожеланиями!

Полезные статьи

Приготовление раствора для наливного пола

Если вы хотите чтобы пол получился ровным, наливные полы – лучший вариант. Особое внимание следует уделить приготовлению раствора. А все потому, что после нанесения на цементную стяжку или бетонное основание внести коррективы или изменить что-либо уже не получится. Поэтому к замешиванию раствора стоит подходить очень внимательно....

Печи и камины в частном доме

Спросите любого человека, и вы поймете, что каждый человек мечтает иметь свой собственный дом, который он сможет обустроить так, как ему хочется. Этот дом будет полон уюта, тепла, света и комфорта, а главное, что, придя с работы, человек сможет запросто отдохнуть у своего очага.  Нет никакой альтернативы перед выбором печи или камина. Эти две вещи не сможет  заменить ни искусственный свет, ни солнечное освещение. Камин и печь, с древности, считаются предметом роскоши. Ни один большой дом не может обойтись без них, поскольку если удастся сесть и посидеть перед этим местом, то долго нельзя будет...

Проекты домов и коттеджей > Каталог проектов домов > Проект экономного дома с мансардой Vg1220

Проект экономного дома с мансардой Vg1220

Проект экономного дома с мансардой
Зарегистрируйтесь

Проект № Vg1220


Техническое описание
Общая площадь: 134.25 м2
Жилая площадь: 101.08 м2
Высота здания: 9.34 м
Размеры дома: 7.94м×12.04м
Кол-во комнат: 5
Цокольный этаж: нет
Гараж: нет
Мансарда: есть

Kонструкция
Фундамент: Ленточный
Перекрытия: Деревянные балки
Материал стен: Газобетон

Архитектурный раздел
АР+КР - 52 000 (Со скидкой 20%)
Срок подготовки проекта — 7 рабочих дней. Проект индивидуального одноэтажного жилого дома с мансардой с размерами здания 7,94 x 12,04 м. Наружная отделка здания - фасадная штукатурка. Цоколь - отделка камнем. Фундамент - ленточный, монолитный ж/б. Наружные стены: газобетонные блоки, ЭПП, отделка фасада штукатуркой. Внутренние стены выполняются из газобетонных блоков. Перегородки выполняются из кирпича. Перемычки - монолитные и сварные из профиля проката. Пол первого этажа - пол по грунту. Перекрытие над первым этажом - по деревянным балкам. Потолок мансардного этажа - по затяжкам стропильной системы. Крыша двускатная. Материал - гибкая кровля. Окна - металлопластиковые, выполненные по индивидуальному заказу. Лестница -по индивидуальному заказу.
Генплан застройки участка / Паспорт проекта 7000 руб / 10000 руб
Инженерный раздел (полный) 67000 руб
Смета на строительство 33500 руб
Теплотехнический расчет материалов стен Бесплатно
Стоимость проекта со незначительнми изменениями 61650 руб
Стоимость проекта со средними изменениями* 71700 руб
Стоимость проекта со значительными изменениями** 74400 руб

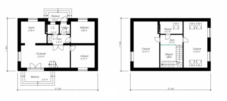
План первого этажа


Тамбур — 2,20 м2
С/у — 2,43 м2
Холл — 4,36 м2
Кабинет — 11,88 м2
Спальня — 12,24 м2
Гостиная — 25,09 м2
Кухня — 12,38 м2
Проект экономного дома с мансардой Проект экономного дома с мансардой Проект экономного дома с мансардой Проект экономного дома с мансардой
Внесение изменений и привязка к участку строительства

В любой из проектов от компании VIPplan - Коркино по вашему желанию могут быть внесены изменения в материалы стен, материалы наружной отделки дома, а также будет произведена адаптация проекта под конкретный регион строительства (с учетом грунтов региона, геологических особенностей вашего участка и местных климатических условий) - БЕСПЛАТНО !!! (кроме проектов со скидкой и проектов наших партнеров).

Любой из проектов, размещенных на сайте korkino.vipplan.ru мы можем выполнить из требуемых вам строительных материалов: ячеистый бетон (газобетон, пеноблок), керамоблок, кирпич, шлакоблок, бетонный блок, дерево (брус, клееный брус), каркасная технология (деревянный каркас, металлокаркас (ЛСТК)).

Фасад дома и его наружную отделку так же возможно выполнить с применением различных облицовочных материалов: структурной штукатурки, (с утеплителем и без), сайдингом (пластиковый или металлосайдинг), фиброплитами, кирпича.

 
6 Избранные
проекты

Доставка проектов по России: Москва (Московская область), Санкт-Петербург (Ленинградская область), Краснодар, Ростов-на-Дону, Ставрополь, Сочи, Волгоград, Новосибирск, Белгород, Брянск, Воронеж, Саратов, Хабаровск, Астрахань, Нальчик, Владикавказ, Екатеринбург, Тюмень, Самара, Нижний Новгород, Казань, Пермь, Уфа, Челябинск, Красноярск, Ханты-Мансийск, Иркутск, Курган, Оренбург, Омск, Томск, Барнаул, Новокузнецк, Кемерово, Абакан, Чита, Якутск, Южно-Сахалинск, Петропавловск-Камчатский и страны ближнего зарубежья: Белоруссия, Украина, Казахстан