Добро пожаловать на http://vipplan.ru

Випплан Коркино - это тысячи проектов домов в нашем каталоге!

Вы всегда сможете найти для себя проект дома вашей мечты! Даже если этого не случилось, мы готовы в любую минуту предложить проект индивидуального дома.

Забыли пароль?
Вы еще не регистрировались?

Перейдите по ссылке ниже на страницу регистрации.

Регистрация...

Внимание!!!

В проектную документацию могут быть внесены изменения любой сложности, в соответствии в Вашими пожеланиями!

Полезные статьи

Виды бассейнов

В наше время, строительство бассейна на территории своего участка, не такая уж и роскошь. Выбор видов и стилей бассейна, на сегодняшний день, очень большой....

Сборные фундаменты

В наше время все большую популярность при строительстве дома приобретают сборные бетонные и железобетонные блоки. Их использование значительно сокращает время работ и снижает их трудоемкость....

Проекты домов и коттеджей > Каталог проектов домов > Компактный коттедж из керамзитобетонных блоков Vg1341

Компактный коттедж из керамзитобетонных блоков Vg1341

Компактный коттедж из керамзитобетонных блоков
Зарегистрируйтесь

Проект № Vg1341


Техническое описание
Общая площадь: 112.67 м2
Жилая площадь: 48.27 м2
Высота здания: 9.01 м
Размеры дома: 11.18м×14.83м
Кол-во комнат: 4
Цокольный этаж: нет
Гараж: нет
Мансарда: есть

Kонструкция
Фундамент: Ленточный
Перекрытия: Деревянные балки
Материал стен: Бетонные блоки

Архитектурный раздел
Конструктивный раздел
АР+КР - 48 000 (Со скидкой 20%)
Проект индивидуального однотажного жилого дома с мансардой с размерами здания 11,18 x 14,83 м. Наружная отделка здания – облицовочный кирпич. Фундамент – ленточный монолитный ж/б (под несущими стенами). Наружные стены – керамзитобетонные блоки, облицовочный кирпич. Внутренние стены - керамзитобетонные блоки. Перегородки – из кирпича на 1 этаже, на мансарде из ГКЛ на металлическом каркасе. Пол первого этажа - пол по грунту . Межэтажное перекрытие-деревянные балки с использованием теплошумоизоляционных материалов типа "URSA" в межбалочном пространстве. Крыша металлочерепица. Кровля – двускатая. Окна - металлопластиковые, выполненные по индивидуальному заказу.
Генплан застройки участка / Паспорт проекта 7000 руб / 10000 руб
Инженерный раздел (полный) 56500 руб
Смета на строительство 28250 руб
Теплотехнический расчет материалов стен Бесплатно
Стоимость проекта со незначительнми изменениями 57150 руб
Стоимость проекта со средними изменениями* 65700 руб
Стоимость проекта со значительными изменениями** 67900 руб

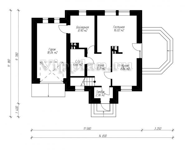
План первого этажа


Тамбур — 2,36 м2
Холл — 7,71 м2
Гостиная — 16,02 м2
Кухня — 8,84 м2
Бойлерная — 8,90 м2
С/у — 4,46 м2
Гараж — 18,04 м2

План мансардного этажа


Холл — 7,67 м2
Спальня — 10,38 м2
Спальня — 10,76 м2
Спальня — 11,11 м2
С/у — 4,80 м2
Балкон — 5,40 м2
Компактный коттедж из керамзитобетонных блоков Компактный коттедж из керамзитобетонных блоков Компактный коттедж из керамзитобетонных блоков Компактный коттедж из керамзитобетонных блоков
Внесение изменений и привязка к участку строительства

В любой из проектов от компании VIPplan - Коркино по вашему желанию могут быть внесены изменения в материалы стен, материалы наружной отделки дома, а также будет произведена адаптация проекта под конкретный регион строительства (с учетом грунтов региона, геологических особенностей вашего участка и местных климатических условий) - БЕСПЛАТНО !!! (кроме проектов со скидкой и проектов наших партнеров).

Любой из проектов, размещенных на сайте korkino.vipplan.ru мы можем выполнить из требуемых вам строительных материалов: ячеистый бетон (газобетон, пеноблок), керамоблок, кирпич, шлакоблок, бетонный блок, дерево (брус, клееный брус), каркасная технология (деревянный каркас, металлокаркас (ЛСТК)).

Фасад дома и его наружную отделку так же возможно выполнить с применением различных облицовочных материалов: структурной штукатурки, (с утеплителем и без), сайдингом (пластиковый или металлосайдинг), фиброплитами, кирпича.

 
6 Избранные
проекты

Доставка проектов по России: Москва (Московская область), Санкт-Петербург (Ленинградская область), Краснодар, Ростов-на-Дону, Ставрополь, Сочи, Волгоград, Новосибирск, Белгород, Брянск, Воронеж, Саратов, Хабаровск, Астрахань, Нальчик, Владикавказ, Екатеринбург, Тюмень, Самара, Нижний Новгород, Казань, Пермь, Уфа, Челябинск, Красноярск, Ханты-Мансийск, Иркутск, Курган, Оренбург, Омск, Томск, Барнаул, Новокузнецк, Кемерово, Абакан, Чита, Якутск, Южно-Сахалинск, Петропавловск-Камчатский и страны ближнего зарубежья: Белоруссия, Украина, Казахстан