Добро пожаловать на http://vipplan.ru

Випплан Коркино - это тысячи проектов домов в нашем каталоге!

Вы всегда сможете найти для себя проект дома вашей мечты! Даже если этого не случилось, мы готовы в любую минуту предложить проект индивидуального дома.

Забыли пароль?
Вы еще не регистрировались?

Перейдите по ссылке ниже на страницу регистрации.

Регистрация...

Внимание!!!

В проектную документацию могут быть внесены изменения любой сложности, в соответствии в Вашими пожеланиями!

Полезные статьи

Выбор проекта дома в Коркине. Типовой или индивидуальный?

Строительство дома начинается с выбора проекта. От него будет зависит удобство, комфорт и функциональность Вашего будущего дома. Какой проект выбрать? В каталоге проектов домов VIPplan Коркино предоставлен огромный выбор проектов на любой вкус и кошелек. В итоге выбор сводится к покупке типового проекта дома или заказа индивидуального проекта. Для упращения задачи, расскажем о каждом варианте по отдельности...

Вентиляция в подвале дома

Без подвала или цокольного этажа в частном доме, в наше время, не обойтись. Это полезное для дома помещение должно быть хорошо вентилируемым. В доме с подвалом должна быть хорошая циркуляция воздуха, для сохранения находящихся в нем продуктов. Отсутствие вентиляции  может привести к образованию плесени и сырости не только в подвале, но и во всем доме....

Проекты домов и коттеджей > Каталог проектов домов > Проект удобного дома с гаражом Vg163

Проект удобного дома с гаражом Vg163

Проект удобного дома с гаражом
Зарегистрируйтесь

Проект № Vg163


Техническое описание
Общая площадь: 150 м2
Размеры дома: 11м×9м
Кол-во комнат: 5
Цокольный этаж: нет
Гараж: есть
Мансарда: есть

Kонструкция
Фундамент: Свайно-ростверковый
Отделка дома: Плоский шифер с нанесением декоративной штукатурки.Частично по фасаду отделка камнем
Перекрытия: По металлическим балкам
Материал стен: Газобетонные блоки, пеноплекс и плоский шифер

Архитектурный раздел
Конструктивный раздел
Инженерный раздел
АР+КР - 52 000 (Со скидкой 20%)
АР+КР+ИР - 104 500 (Со скидкой 50%)

Проект индивидуального двухэтажного одноквартирного жилого дома с размерами 10,68 x 8,88 м.
Наружная отделка здания -плоским шифером с нанесением декоративной штукатурки.Частично по фасаду отделка камнем.
Цоколь- камень.
Фундамент - свайно-ростверковый .
Наружные стены запроектированы из: газобетонных блоков, пеноплекса и плоского шифера.
Внутренние стены и перегородки -из газобетонных блоков.
Перемычки - монолитные и сварные из профиля проката.
Перекрытие межэтажное – по металлическим балкам.
Пол первого этажа - пол по грунту.
Крыша -многоскатная. Материал кровли - металлочерепица.
Окна - металлопластиковые, выполненные по индивидуальному заказу.
Лестница выполняется по индивидуальному заказу.

Генплан застройки участка / Паспорт проекта 7000 руб / 10000 руб
Инженерный раздел (полный) 52500 руб (75000 руб)
Смета на строительство 37500 руб
Теплотехнический расчет материалов стен Бесплатно
Стоимость проекта со незначительнми изменениями 61250 руб
Стоимость проекта со средними изменениями* 72500 руб
Стоимость проекта со значительными изменениями** 75500 руб

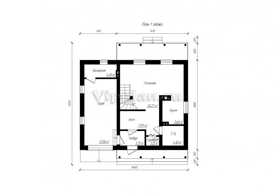
План первого этажа


Тамбур - 3,71 м2
Холл - 7,97 м2
Гардероб - 1,21 м2
Гостиная - 25,27 м2
Кухня - 5,60 м2
С/у - 4,30 м2
Бойлерная - 4,30 м2
Гараж - 21.58 м2

План мансардного этажа


Холл - 2,59 м2
Комната отдыха - 9,96 м2
Спальня - 12,34 м2
Спальня - 20,11 м2
Спальня - 19,96 м2
Гардероб - 6,44 м2
Балкон - 11,01 м2
Проект удобного дома с гаражом Проект удобного дома с гаражом Проект удобного дома с гаражом Проект удобного дома с гаражом

Модификации проектов

Внесение изменений и привязка к участку строительства

В любой из проектов от компании VIPplan - Коркино по вашему желанию могут быть внесены изменения в материалы стен, материалы наружной отделки дома, а также будет произведена адаптация проекта под конкретный регион строительства (с учетом грунтов региона, геологических особенностей вашего участка и местных климатических условий) - БЕСПЛАТНО !!! (кроме проектов со скидкой и проектов наших партнеров).

Любой из проектов, размещенных на сайте korkino.vipplan.ru мы можем выполнить из требуемых вам строительных материалов: ячеистый бетон (газобетон, пеноблок), керамоблок, кирпич, шлакоблок, бетонный блок, дерево (брус, клееный брус), каркасная технология (деревянный каркас, металлокаркас (ЛСТК)).

Фасад дома и его наружную отделку так же возможно выполнить с применением различных облицовочных материалов: структурной штукатурки, (с утеплителем и без), сайдингом (пластиковый или металлосайдинг), фиброплитами, кирпича.

 
6 Избранные
проекты

Доставка проектов по России: Москва (Московская область), Санкт-Петербург (Ленинградская область), Краснодар, Ростов-на-Дону, Ставрополь, Сочи, Волгоград, Новосибирск, Белгород, Брянск, Воронеж, Саратов, Хабаровск, Астрахань, Нальчик, Владикавказ, Екатеринбург, Тюмень, Самара, Нижний Новгород, Казань, Пермь, Уфа, Челябинск, Красноярск, Ханты-Мансийск, Иркутск, Курган, Оренбург, Омск, Томск, Барнаул, Новокузнецк, Кемерово, Абакан, Чита, Якутск, Южно-Сахалинск, Петропавловск-Камчатский и страны ближнего зарубежья: Белоруссия, Украина, Казахстан