Добро пожаловать на http://vipplan.ru

Випплан Коркино - это тысячи проектов домов в нашем каталоге!

Вы всегда сможете найти для себя проект дома вашей мечты! Даже если этого не случилось, мы готовы в любую минуту предложить проект индивидуального дома.

Забыли пароль?
Вы еще не регистрировались?

Перейдите по ссылке ниже на страницу регистрации.

Регистрация...

Внимание!!!

В проектную документацию могут быть внесены изменения любой сложности, в соответствии в Вашими пожеланиями!

Полезные статьи

Виды фундаментов

Можно смело сказать, что самое главное качество фундамента - надежность. Фундамент дома бывает нескольких видов. Все они отличаются прочностью, технологией закладывания и областью использования. Запомните, экономить на фундаменте – плохая идея. Затраты на ремонт будут огромными, а зачастую в случае нарушения технологии закладки фундамента исправить ошибку будет невозможно....

Мероприятия по получению разрешения на строительство в Коркине

Хотите построить дом в Коркине? Не знаете с чего начать? Для начала, нужно заказать проект, а после получить разрешение на строительство. ...

Проекты домов и коттеджей > Каталог проектов домов > Проект одноэтажного кирпичного дома Vg166

Проект одноэтажного кирпичного дома Vg166

Проект одноэтажного кирпичного дома
Зарегистрируйтесь

Проект № Vg166


Техническое описание
Общая площадь: 80 м2
Высота здания: 7 м
Размеры дома: 11м×10м
Кол-во комнат: 3
Цокольный этаж: нет
Гараж: нет
Мансарда: нет

Kонструкция
Фундамент: Ленточный монолитный ж/б ("щелевой"- стена в грунте)
Отделка дома: Облицовочный кирпич.Частично по фасаду отделка камнем
Перекрытия: По деревянным балкам с использованием теплошумоизоляционных материалов
Материал стен: Забутовочный кирпич с отделкой облицовочным кирпичом

Архитектурный раздел
Конструктивный раздел
АР+КР - 44 000 (Со скидкой 20%)


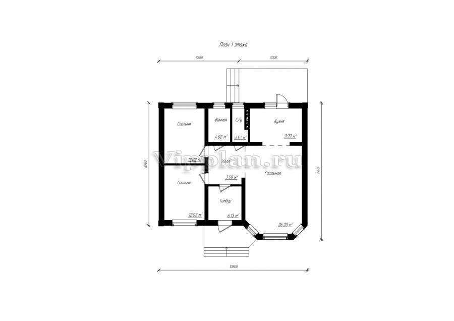
Проект индивидуального одноэтажного жилого дома с размерами 10,86 x 9,96 м. 
Наружная отделка здания -облицовочный кирпич.Частично по фасаду отделка камнем. 
Обрамление оконных и дверных проемов - камень.
Цоколь - камень.
Фундамент – ленточный монолитный ж/б ("щелевой"- стена в грунте).
Наружные стены запроектированы из забутовочного кирпича с отделкой облицовочным кирпичом.
Внутренние стены и перегородки - из забутовочного кирпича.
Перемычки - монолитные и сварные из профиля проката.
Перекрытие чердачное - по деревянным балкам с использованием теплошумоизоляционных материалов. 
Пол первого этажа - пол по грунту.
Крыша -многоскатная. Материал кровли - металлочерепица. 
Окна - металлопластиковые, выполненные по индивидуальному заказу. 
 
 Технико-экономические показатели
 
Общая площадь помещений - 80,48 м2
Этажность - 1
Высота здания - 7 м от отметки ур. земли до конька
 

Генплан застройки участка / Паспорт проекта 7000 руб / 10000 руб
Инженерный раздел (полный) 50000 руб
Смета на строительство 25000 руб
Теплотехнический расчет материалов стен Бесплатно
Стоимость проекта со незначительнми изменениями 53000 руб
Стоимость проекта со средними изменениями* 59000 руб
Стоимость проекта со значительными изменениями** 60600 руб

План первого этажа


Тамбур - 6,13 м2
Холл - 7,59 м2
Гостиная - 26,20 м2
Спальня - 12,02 м2
Спальня - 12,02 м2
Кухня - 9,99 м2
Ванная - 4,02 м2
С/у - 2,52 м2
Проект одноэтажного кирпичного дома Проект одноэтажного кирпичного дома Проект одноэтажного кирпичного дома Проект одноэтажного кирпичного дома
Внесение изменений и привязка к участку строительства

В любой из проектов от компании VIPplan - Коркино по вашему желанию могут быть внесены изменения в материалы стен, материалы наружной отделки дома, а также будет произведена адаптация проекта под конкретный регион строительства (с учетом грунтов региона, геологических особенностей вашего участка и местных климатических условий) - БЕСПЛАТНО !!! (кроме проектов со скидкой и проектов наших партнеров).

Любой из проектов, размещенных на сайте korkino.vipplan.ru мы можем выполнить из требуемых вам строительных материалов: ячеистый бетон (газобетон, пеноблок), керамоблок, кирпич, шлакоблок, бетонный блок, дерево (брус, клееный брус), каркасная технология (деревянный каркас, металлокаркас (ЛСТК)).

Фасад дома и его наружную отделку так же возможно выполнить с применением различных облицовочных материалов: структурной штукатурки, (с утеплителем и без), сайдингом (пластиковый или металлосайдинг), фиброплитами, кирпича.

 
6 Избранные
проекты

Доставка проектов по России: Москва (Московская область), Санкт-Петербург (Ленинградская область), Краснодар, Ростов-на-Дону, Ставрополь, Сочи, Волгоград, Новосибирск, Белгород, Брянск, Воронеж, Саратов, Хабаровск, Астрахань, Нальчик, Владикавказ, Екатеринбург, Тюмень, Самара, Нижний Новгород, Казань, Пермь, Уфа, Челябинск, Красноярск, Ханты-Мансийск, Иркутск, Курган, Оренбург, Омск, Томск, Барнаул, Новокузнецк, Кемерово, Абакан, Чита, Якутск, Южно-Сахалинск, Петропавловск-Камчатский и страны ближнего зарубежья: Белоруссия, Украина, Казахстан