Добро пожаловать на http://vipplan.ru

Випплан Коркино - это тысячи проектов домов в нашем каталоге!

Вы всегда сможете найти для себя проект дома вашей мечты! Даже если этого не случилось, мы готовы в любую минуту предложить проект индивидуального дома.

Забыли пароль?
Вы еще не регистрировались?

Перейдите по ссылке ниже на страницу регистрации.

Регистрация...

Внимание!!!

В проектную документацию могут быть внесены изменения любой сложности, в соответствии в Вашими пожеланиями!

Полезные статьи

Печи и камины в частном доме

Спросите любого человека, и вы поймете, что каждый человек мечтает иметь свой собственный дом, который он сможет обустроить так, как ему хочется. Этот дом будет полон уюта, тепла, света и комфорта, а главное, что, придя с работы, человек сможет запросто отдохнуть у своего очага.  Нет никакой альтернативы перед выбором печи или камина. Эти две вещи не сможет  заменить ни искусственный свет, ни солнечное освещение. Камин и печь, с древности, считаются предметом роскоши. Ни один большой дом не может обойтись без них, поскольку если удастся сесть и посидеть перед этим местом, то долго нельзя будет...

Виды фундаментов

Можно смело сказать, что самое главное качество фундамента - надежность. Фундамент дома бывает нескольких видов. Все они отличаются прочностью, технологией закладывания и областью использования. Запомните, экономить на фундаменте – плохая идея. Затраты на ремонт будут огромными, а зачастую в случае нарушения технологии закладки фундамента исправить ошибку будет невозможно....

Проекты домов и коттеджей > Каталог проектов домов > Одноэтажный компактный жилой дом Vg168

Одноэтажный компактный жилой дом Vg168

Одноэтажный компактный жилой дом
Зарегистрируйтесь

Проект № Vg168


Техническое описание
Общая площадь: 83 м2
Высота здания: 5.42 м
Размеры дома: 8м×12м
Кол-во комнат: 4
Цокольный этаж: нет
Гараж: нет
Мансарда: нет

Kонструкция
Фундамент: Ленточный монолитный ж/б
Отделка дома: Фасадная штукатурка
Перекрытия: Деревянные балки
Материал стен: Газобетонные блоки, утеплитель и штукатурка

Архитектурный раздел
Конструктивный раздел
АР+КР - 44 000 (Со скидкой 20%)


Проект индивидуального одноэтажного жилого дома с мансардой с размерами 8,24 x 12,24 м. 
Наружная отделка здания – фасадная штукатурка.
Цоколь – клинкерная плитка.
Фундамент – стена в грунте (щелевой).
Наружные стены запроектированы из: несъемной опалубки
Внутренние стены и перегородки - из несъемной опалубки и кирпича.
Перемычки - монолитные и сварные из профиля проката.
Перекрытие чердачное – деревянные балки.
Пол этажа – пол по грунту.
Крыша - двускатная. Материал кровли – металлочерепица
Окна - металлопластиковые, выполненные по индивидуальному заказу. 
Лестница  выполняется  по индивидуальному заказу. 
 
 
Технико-экономические показатели
 
Общая площадь помещений - 82,80 м2
Этажность - 1
Высота здания - 5,42 м от отметки ур. земли до конька
 

Генплан застройки участка / Паспорт проекта 7000 руб / 10000 руб
Инженерный раздел (полный) 50000 руб
Смета на строительство 25000 руб
Теплотехнический расчет материалов стен Бесплатно
Стоимость проекта со незначительнми изменениями 52900 руб
Стоимость проекта со средними изменениями* 59200 руб
Стоимость проекта со значительными изменениями** 60800 руб

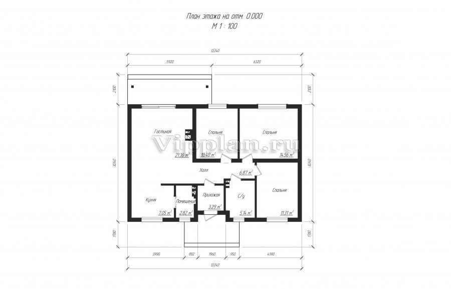
План первого этажа


Прихожая - 3,29 м2
Гостиная - 21,36 м2
Холл - 6,87 м2
Спальня - 10,40 м2
Спальня - 14,56 м2
Спальня - 11,31 м2
Кухня - 7,05 м2
Помещение - 2,82 м2
С/у - 5,14 м2
Одноэтажный компактный жилой дом Одноэтажный компактный жилой дом Одноэтажный компактный жилой дом Одноэтажный компактный жилой дом Одноэтажный компактный жилой дом

Модификации проектов

Внесение изменений и привязка к участку строительства

В любой из проектов от компании VIPplan - Коркино по вашему желанию могут быть внесены изменения в материалы стен, материалы наружной отделки дома, а также будет произведена адаптация проекта под конкретный регион строительства (с учетом грунтов региона, геологических особенностей вашего участка и местных климатических условий) - БЕСПЛАТНО !!! (кроме проектов со скидкой и проектов наших партнеров).

Любой из проектов, размещенных на сайте korkino.vipplan.ru мы можем выполнить из требуемых вам строительных материалов: ячеистый бетон (газобетон, пеноблок), керамоблок, кирпич, шлакоблок, бетонный блок, дерево (брус, клееный брус), каркасная технология (деревянный каркас, металлокаркас (ЛСТК)).

Фасад дома и его наружную отделку так же возможно выполнить с применением различных облицовочных материалов: структурной штукатурки, (с утеплителем и без), сайдингом (пластиковый или металлосайдинг), фиброплитами, кирпича.

 
6 Избранные
проекты

Доставка проектов по России: Москва (Московская область), Санкт-Петербург (Ленинградская область), Краснодар, Ростов-на-Дону, Ставрополь, Сочи, Волгоград, Новосибирск, Белгород, Брянск, Воронеж, Саратов, Хабаровск, Астрахань, Нальчик, Владикавказ, Екатеринбург, Тюмень, Самара, Нижний Новгород, Казань, Пермь, Уфа, Челябинск, Красноярск, Ханты-Мансийск, Иркутск, Курган, Оренбург, Омск, Томск, Барнаул, Новокузнецк, Кемерово, Абакан, Чита, Якутск, Южно-Сахалинск, Петропавловск-Камчатский и страны ближнего зарубежья: Белоруссия, Украина, Казахстан