Добро пожаловать на http://vipplan.ru

Випплан Коркино - это тысячи проектов домов в нашем каталоге!

Вы всегда сможете найти для себя проект дома вашей мечты! Даже если этого не случилось, мы готовы в любую минуту предложить проект индивидуального дома.

Забыли пароль?
Вы еще не регистрировались?

Перейдите по ссылке ниже на страницу регистрации.

Регистрация...

Внимание!!!

В проектную документацию могут быть внесены изменения любой сложности, в соответствии в Вашими пожеланиями!

Полезные статьи

Закладка фундамента дома

Закладка фундамента является одним из первых и самых главных этапов строительства любого дома. Все здание опирается именно на эту часть конструкции. Поэтому главная функция фундамента заключается в том, чтобы нести на себе весь вес несущих стен и кровли, а значит предотвращать появление перекоса стен, проседание сооружения, что неизбежно приводит к образованию трещин в стенах здания и в фундаменте....

Виды фундаментов

Можно смело сказать, что самое главное качество фундамента - надежность. Фундамент дома бывает нескольких видов. Все они отличаются прочностью, технологией закладывания и областью использования. Запомните, экономить на фундаменте – плохая идея. Затраты на ремонт будут огромными, а зачастую в случае нарушения технологии закладки фундамента исправить ошибку будет невозможно....

Проекты домов и коттеджей > Каталог проектов домов > Проект двухэтажного особняка с подвалом Vg2296

Проект двухэтажного особняка с подвалом Vg2296

Проект двухэтажного особняка с подвалом
Зарегистрируйтесь

Проект № Vg2296


Техническое описание
Общая площадь: 476.54 м2
Жилая площадь: 146.89 м2
Высота здания: 10.08 м
Размеры дома: 13.55м×16.98м
Кол-во комнат: 6
Цокольный этаж: есть
Гараж: нет
Мансарда: нет

Kонструкция
Фундамент: Монолитная ж/б плита
Перекрытия: Монолитная ж/б плита
Материал стен: Керамоблок

Архитектурный раздел
АР+КР - 108 000 (Со скидкой 20%)
Модель проекта индивидуального двухэтажного жилого дома с подвалом с размерами здания 13,55 x 16,98 м. Наружная отделка здания – облицовочный кирпич. Фундамент – монолитная ж/б плита. Наружные стены – керамический блок "Poromax". Внутренние стены - керамический блок "Poromax". Перегородки - забутовочный кирпич. Пол подвала - пол по монолитной плите. Межэтажное перекрытие - монолитная ж/б плита. Чердачное перекрытие - деревянные балки. Крыша четырехскатная. Кровля – металлочерепица. Окна — металлопластиковые.
Генплан застройки участка / Паспорт проекта 7000 руб / 10000 руб
Инженерный раздел (полный) 238500 руб
Смета на строительство 119250 руб
Теплотехнический расчет материалов стен Бесплатно
Стоимость проекта со незначительнми изменениями 123050 руб
Стоимость проекта со средними изменениями* 158900 руб
Стоимость проекта со значительными изменениями** 168400 руб

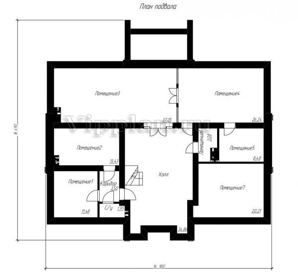
План цокольного этажа


Холл — 38,86 кв м
Коридор — 3,50 кв м
С/у — 1,95 кв м
Помещение 1 — 11,48 кв м
Помещение 2 — 13,43 кв м
Помещение 3 — 37,05 кв м
Помещение 4 — 26,24 кв м
Помещение 6 — 3,08 кв м
Помещение 7 — 20,21 кв м

План первого этажа


Прихожая — 8,53 кв м
Холл — 27,65 кв м
Гостиная — 53,06 кв м
Столовая — 25,62 кв м
Кухня — 22,45 кв м
Кладовая — 3,08 кв м
С/у — 1,83 кв м
Кабинет — 12,43 кв м
Гардероб — 4,21 кв м

Проект двухэтажного особняка с подвалом

Проект двухэтажного особняка с подвалом

План второго этажа


Холл — 27,83 кв м
Спальня — 17,63 кв м
Спальня — 24,63 кв м
Спальня — 21,13 кв м
Спальня — 18,01 кв м
С/у — 13,99 кв м
С/у — 11,40 кв м
Гардероб — 13,43 кв м
Гардероб — 3,96 кв м
Терраса — 4,26 кв м
Балкон — 1,13 кв м
Проект двухэтажного особняка с подвалом Проект двухэтажного особняка с подвалом Проект двухэтажного особняка с подвалом Проект двухэтажного особняка с подвалом
Внесение изменений и привязка к участку строительства

В любой из проектов от компании VIPplan - Коркино по вашему желанию могут быть внесены изменения в материалы стен, материалы наружной отделки дома, а также будет произведена адаптация проекта под конкретный регион строительства (с учетом грунтов региона, геологических особенностей вашего участка и местных климатических условий) - БЕСПЛАТНО !!! (кроме проектов со скидкой и проектов наших партнеров).

Любой из проектов, размещенных на сайте korkino.vipplan.ru мы можем выполнить из требуемых вам строительных материалов: ячеистый бетон (газобетон, пеноблок), керамоблок, кирпич, шлакоблок, бетонный блок, дерево (брус, клееный брус), каркасная технология (деревянный каркас, металлокаркас (ЛСТК)).

Фасад дома и его наружную отделку так же возможно выполнить с применением различных облицовочных материалов: структурной штукатурки, (с утеплителем и без), сайдингом (пластиковый или металлосайдинг), фиброплитами, кирпича.

 
6 Избранные
проекты

Доставка проектов по России: Москва (Московская область), Санкт-Петербург (Ленинградская область), Краснодар, Ростов-на-Дону, Ставрополь, Сочи, Волгоград, Новосибирск, Белгород, Брянск, Воронеж, Саратов, Хабаровск, Астрахань, Нальчик, Владикавказ, Екатеринбург, Тюмень, Самара, Нижний Новгород, Казань, Пермь, Уфа, Челябинск, Красноярск, Ханты-Мансийск, Иркутск, Курган, Оренбург, Омск, Томск, Барнаул, Новокузнецк, Кемерово, Абакан, Чита, Якутск, Южно-Сахалинск, Петропавловск-Камчатский и страны ближнего зарубежья: Белоруссия, Украина, Казахстан