Добро пожаловать на http://vipplan.ru

Випплан Коркино - это тысячи проектов домов в нашем каталоге!

Вы всегда сможете найти для себя проект дома вашей мечты! Даже если этого не случилось, мы готовы в любую минуту предложить проект индивидуального дома.

Забыли пароль?
Вы еще не регистрировались?

Перейдите по ссылке ниже на страницу регистрации.

Регистрация...

Внимание!!!

В проектную документацию могут быть внесены изменения любой сложности, в соответствии в Вашими пожеланиями!

Полезные статьи

Выбор бригады строителей в Коркине

Перед началом строительства дома перед будущим хозяином загородной недвижимости в Челябинской области обозначится несколько вариантов: обратиться в строительную компанию, специализирующуюся на малоэтажном коттеджном строительстве, воспользоваться услугами частной бригады; строить самому "своими руками"....

Газобетонные перекрытия

Перекрытия из газобетонных плит, устанавливаются без применения подъемников и кранов. Строители устанавливают прочные и, что немаловажно, легкие газоблоки без помощи техники. Ячеистый бетон (пенобетон и газобетон) нашел широкое применение в домах из пенобетона и газобетона в Коркине...

Проекты домов и коттеджей > Каталог проектов домов > Проект одноэтажного дома с разноуровневыми террасами Vg2298

Проект одноэтажного дома с разноуровневыми террасами Vg2298

Проект одноэтажного дома с разноуровневыми террасами
Зарегистрируйтесь

Проект № Vg2298


Техническое описание
Общая площадь: 164.62 м2
Жилая площадь: 75.75 м2
Высота здания: 7.47 м
Размеры дома: 17.14м×14.14м
Кол-во комнат: 4
Цокольный этаж: нет
Гараж: нет
Мансарда: нет

Kонструкция
Фундамент: Ленточный монолитный ж/б
Перекрытия: Деревянные балки
Материал стен: Кирпич

Архитектурный раздел
Конструктивный раздел
АР+КР - 56 000 (Со скидкой 20%)
Модель проекта индивидуального одноэтажного жилого дома с размерами здания 17,14 x 14,14 м. Наружная отделка здания – облицовочный кирпич. Фундамент – ленточный монолитный ж/б Наружные стены – забутовочный кирпич. Внутренние стены и перегородки - забутовочный кирпич. Пол 1 этажа - пол по грунту. Чердачное перекрытие - деревянные балки. Крыша многоскатная. Кровля – металлочерепица. Окна — металлопластиковые.
Генплан застройки участка / Паспорт проекта 7000 руб / 10000 руб
Инженерный раздел (полный) 82500 руб
Смета на строительство 41250 руб
Теплотехнический расчет материалов стен Бесплатно
Стоимость проекта со незначительнми изменениями 65850 руб
Стоимость проекта со средними изменениями* 78300 руб
Стоимость проекта со значительными изменениями** 81600 руб

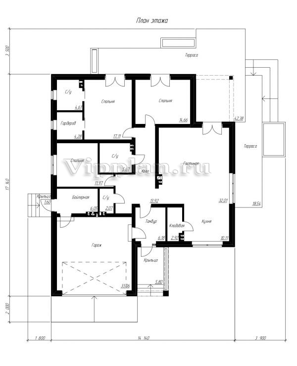
План первого этажа


Тамбур — 6,18 кв м
Холл — 13,92 кв м
Гостиная — 32,01 кв м
Кухня — 10,11 кв м
Кладовая — 2,92 кв м
С/у — 4,61 кв м
С/у — 5,67 кв м
С/у — 2,07 кв м
Бойлерная — 6,05 кв м
Гардероб — 4,28 кв м
Гараж — 33,06 кв м
Спальня — 14,66 кв м
Спальня — 17,11 кв м
Спальня — 11,97 кв м
Проект одноэтажного дома с разноуровневыми террасами Проект одноэтажного дома с разноуровневыми террасами Проект одноэтажного дома с разноуровневыми террасами Проект одноэтажного дома с разноуровневыми террасами

Модификации проектов

Внесение изменений и привязка к участку строительства

В любой из проектов от компании VIPplan - Коркино по вашему желанию могут быть внесены изменения в материалы стен, материалы наружной отделки дома, а также будет произведена адаптация проекта под конкретный регион строительства (с учетом грунтов региона, геологических особенностей вашего участка и местных климатических условий) - БЕСПЛАТНО !!! (кроме проектов со скидкой и проектов наших партнеров).

Любой из проектов, размещенных на сайте korkino.vipplan.ru мы можем выполнить из требуемых вам строительных материалов: ячеистый бетон (газобетон, пеноблок), керамоблок, кирпич, шлакоблок, бетонный блок, дерево (брус, клееный брус), каркасная технология (деревянный каркас, металлокаркас (ЛСТК)).

Фасад дома и его наружную отделку так же возможно выполнить с применением различных облицовочных материалов: структурной штукатурки, (с утеплителем и без), сайдингом (пластиковый или металлосайдинг), фиброплитами, кирпича.

 
6 Избранные
проекты

Доставка проектов по России: Москва (Московская область), Санкт-Петербург (Ленинградская область), Краснодар, Ростов-на-Дону, Ставрополь, Сочи, Волгоград, Новосибирск, Белгород, Брянск, Воронеж, Саратов, Хабаровск, Астрахань, Нальчик, Владикавказ, Екатеринбург, Тюмень, Самара, Нижний Новгород, Казань, Пермь, Уфа, Челябинск, Красноярск, Ханты-Мансийск, Иркутск, Курган, Оренбург, Омск, Томск, Барнаул, Новокузнецк, Кемерово, Абакан, Чита, Якутск, Южно-Сахалинск, Петропавловск-Камчатский и страны ближнего зарубежья: Белоруссия, Украина, Казахстан