Добро пожаловать на http://vipplan.ru

Випплан Коркино - это тысячи проектов домов в нашем каталоге!

Вы всегда сможете найти для себя проект дома вашей мечты! Даже если этого не случилось, мы готовы в любую минуту предложить проект индивидуального дома.

Забыли пароль?
Вы еще не регистрировались?

Перейдите по ссылке ниже на страницу регистрации.

Регистрация...

Внимание!!!

В проектную документацию могут быть внесены изменения любой сложности, в соответствии в Вашими пожеланиями!

Полезные статьи

Виды фундаментов

Можно смело сказать, что самое главное качество фундамента - надежность. Фундамент дома бывает нескольких видов. Все они отличаются прочностью, технологией закладывания и областью использования. Запомните, экономить на фундаменте – плохая идея. Затраты на ремонт будут огромными, а зачастую в случае нарушения технологии закладки фундамента исправить ошибку будет невозможно....

Выбор проекта дома в Коркине

Выбор проекта дома может завести семью в тупик. Прийти к одному конкретному мнению всем членам семьи очень сложно. Кому-то по душе, чтобы дом был большой и одноэтажный, с красивой террасой или верандой, кому-то хочется жить в двухэтажном доме с балконом. Детям, в основном, нравятся дома с мансардой....

Проекты домов и коттеджей > Каталог проектов домов > Проект нестандартного двухэтажного гостевого дома Vg2364

Проект нестандартного двухэтажного гостевого дома Vg2364

Проект нестандартного двухэтажного гостевого дома
Зарегистрируйтесь

Проект № Vg2364


Техническое описание
Общая площадь: 131.06 м2
Жилая площадь: 10.8 м2
Высота здания: 8.09 м
Размеры дома: 8.92м×13.8м
Кол-во комнат: 2
Цокольный этаж: нет
Гараж: нет
Мансарда: нет

Kонструкция
Фундамент: Монолитная ж/б плита
Перекрытия: Сборные ж/б плиты и деревянные балки
Материал стен: Керамоблок

Архитектурный раздел
Конструктивный раздел
Инженерный раздел
АР+КР - 52 000 (Со скидкой 20%)
АР+КР+ИР - 97 850 (Со скидкой 50%)
Модель проекта индивидуального двухэтажного гостевого дома с размерами здания 13,8 x 8,9 м. Наружная отделка здания – сайдинг. Фундамент – монолитная ж/б плита. Наружные стены – керамические блоки Poromax, минвата, сайдинг. Внутренние стены и перегородки - керамические блоки Poromax и гипсовые блоки. Пол 1 этажа - пол по монолитной плите. Перекрытие 2 этажа - сборные ж/б плиты. Чердачное перекрытие - деревянные балки. Крыша многоскатная. Кровля – металлочерепица. Окна — металлопластиковые.
Генплан застройки участка / Паспорт проекта 7000 руб / 10000 руб
Инженерный раздел (полный) 45850 руб (65500 руб)
Смета на строительство 32750 руб
Теплотехнический расчет материалов стен Бесплатно
Стоимость проекта со незначительнми изменениями 61700 руб
Стоимость проекта со средними изменениями* 71600 руб
Стоимость проекта со значительными изменениями** 74200 руб

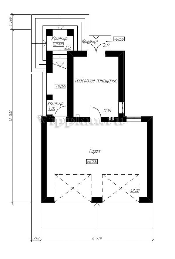
План первого этажа


Гараж — 48 кв м
Подсобка — 17,35 кв м

Проект нестандартного двухэтажного гостевого дома

Проект нестандартного двухэтажного гостевого дома

План второго этажа


Тамбур — 2,45 кв м
Бильярдная — 48 кв м
Гостевая — 10,80 кв м
С/у — 4,46 кв м
Проект нестандартного двухэтажного гостевого дома Проект нестандартного двухэтажного гостевого дома Проект нестандартного двухэтажного гостевого дома Проект нестандартного двухэтажного гостевого дома
Внесение изменений и привязка к участку строительства

В любой из проектов от компании VIPplan - Коркино по вашему желанию могут быть внесены изменения в материалы стен, материалы наружной отделки дома, а также будет произведена адаптация проекта под конкретный регион строительства (с учетом грунтов региона, геологических особенностей вашего участка и местных климатических условий) - БЕСПЛАТНО !!! (кроме проектов со скидкой и проектов наших партнеров).

Любой из проектов, размещенных на сайте korkino.vipplan.ru мы можем выполнить из требуемых вам строительных материалов: ячеистый бетон (газобетон, пеноблок), керамоблок, кирпич, шлакоблок, бетонный блок, дерево (брус, клееный брус), каркасная технология (деревянный каркас, металлокаркас (ЛСТК)).

Фасад дома и его наружную отделку так же возможно выполнить с применением различных облицовочных материалов: структурной штукатурки, (с утеплителем и без), сайдингом (пластиковый или металлосайдинг), фиброплитами, кирпича.

 
6 Избранные
проекты

Доставка проектов по России: Москва (Московская область), Санкт-Петербург (Ленинградская область), Краснодар, Ростов-на-Дону, Ставрополь, Сочи, Волгоград, Новосибирск, Белгород, Брянск, Воронеж, Саратов, Хабаровск, Астрахань, Нальчик, Владикавказ, Екатеринбург, Тюмень, Самара, Нижний Новгород, Казань, Пермь, Уфа, Челябинск, Красноярск, Ханты-Мансийск, Иркутск, Курган, Оренбург, Омск, Томск, Барнаул, Новокузнецк, Кемерово, Абакан, Чита, Якутск, Южно-Сахалинск, Петропавловск-Камчатский и страны ближнего зарубежья: Белоруссия, Украина, Казахстан