Добро пожаловать на http://vipplan.ru

Випплан Коркино - это тысячи проектов домов в нашем каталоге!

Вы всегда сможете найти для себя проект дома вашей мечты! Даже если этого не случилось, мы готовы в любую минуту предложить проект индивидуального дома.

Забыли пароль?
Вы еще не регистрировались?

Перейдите по ссылке ниже на страницу регистрации.

Регистрация...

Внимание!!!

В проектную документацию могут быть внесены изменения любой сложности, в соответствии в Вашими пожеланиями!

Полезные статьи

Закладка фундамента дома

Закладка фундамента является одним из первых и самых главных этапов строительства любого дома. Все здание опирается именно на эту часть конструкции. Поэтому главная функция фундамента заключается в том, чтобы нести на себе весь вес несущих стен и кровли, а значит предотвращать появление перекоса стен, проседание сооружения, что неизбежно приводит к образованию трещин в стенах здания и в фундаменте....

Системы утепления фасада

Основные тепловые потери происходят через стены, фундамент и крышу. Уменьшить их можно с помощью утеплителя, создав внутри дома оптимальный для жизни климат, с достаточно ровным температурным режимом и низкой влажностью....

Проекты домов и коттеджей > Каталог проектов домов > Проект одноэтажного дома с подвалом и мансардой Vg2372

Проект одноэтажного дома с подвалом и мансардой Vg2372

Проект одноэтажного дома с подвалом и мансардой
Зарегистрируйтесь

Проект № Vg2372


Техническое описание
Общая площадь: 256.54 м2
Жилая площадь: 88.18 м2
Высота здания: 9.75 м
Размеры дома: 15.86м×13.38м
Кол-во комнат: 5
Цокольный этаж: есть
Гараж: есть
Мансарда: есть

Kонструкция
Фундамент: Блоки ФБС
Перекрытия: Сборные ж/б плиты перекрытия

Архитектурный раздел
Конструктивный раздел
Инженерный раздел
АР+КР - 72 000 (Со скидкой 20%)
АР+КР+ИР - 161 950 (Со скидкой 50%)
Проект индивидуального одноэтажного жилого дома с подвалом и мансардой с размерами здания 15,86 x 13,38 м. Наружная отделка здания – облицовочный кирпич. Фундамент – ФБС. Наружные стены – керамзитобетонный блок с утеплителем, воздушным зазором и отделкой облицовочным кирпичом. Внутренние стены – керамзитобетонный блок. Перегородки – керамзитобетонный блок (подвал и 1 этаж), гипсокартон на металлическом каркасе (мансарда). Пол подвала и частично 1 этажа – пол по грунту. Межэтажные перекрытия – сборные плиты и деревянные балки перекрытия. Крыша – многоскатная. Кровля – металлочерепица. Окна – металлопластиковые. Лестница – металлическая.
Генплан застройки участка / Паспорт проекта 7000 руб / 10000 руб
Инженерный раздел (полный) 89950 руб (128500 руб)
Смета на строительство 64250 руб
Теплотехнический расчет материалов стен Бесплатно
Стоимость проекта со незначительнми изменениями 83550 руб
Стоимость проекта со средними изменениями* 102900 руб
Стоимость проекта со значительными изменениями** 108000 руб

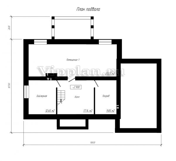
План цокольного этажа


Помещение1 — 37,57 м2
Бойлерная — 12,65
Холл — 17,14 м2
Погреб — 9,85 м2

План первого этажа


Прихожая — 3,06 м2
Холл — 10,10 м2
С/у — 4,57 м2
Помещение2 — 3,88 м2
Гараж — 31,08 м2
Гостевая — 11,87 м2
Гостиная — 24,81 м2
Кухня — 12,36 м2

План мансардного этажа


Холл — 5,7 м2
Гардероб — 4,44 м2
С/у — 11,01 м2
Спальня — 20 м2
Спальня — 19,18 м2
Спальня — 12,32 м2
Лоджия — 4,95 м2
Проект одноэтажного дома с подвалом и мансардой Проект одноэтажного дома с подвалом и мансардой Проект одноэтажного дома с подвалом и мансардой Проект одноэтажного дома с подвалом и мансардой

Модификации проектов

Внесение изменений и привязка к участку строительства

В любой из проектов от компании VIPplan - Коркино по вашему желанию могут быть внесены изменения в материалы стен, материалы наружной отделки дома, а также будет произведена адаптация проекта под конкретный регион строительства (с учетом грунтов региона, геологических особенностей вашего участка и местных климатических условий) - БЕСПЛАТНО !!! (кроме проектов со скидкой и проектов наших партнеров).

Любой из проектов, размещенных на сайте korkino.vipplan.ru мы можем выполнить из требуемых вам строительных материалов: ячеистый бетон (газобетон, пеноблок), керамоблок, кирпич, шлакоблок, бетонный блок, дерево (брус, клееный брус), каркасная технология (деревянный каркас, металлокаркас (ЛСТК)).

Фасад дома и его наружную отделку так же возможно выполнить с применением различных облицовочных материалов: структурной штукатурки, (с утеплителем и без), сайдингом (пластиковый или металлосайдинг), фиброплитами, кирпича.

 
6 Избранные
проекты

Доставка проектов по России: Москва (Московская область), Санкт-Петербург (Ленинградская область), Краснодар, Ростов-на-Дону, Ставрополь, Сочи, Волгоград, Новосибирск, Белгород, Брянск, Воронеж, Саратов, Хабаровск, Астрахань, Нальчик, Владикавказ, Екатеринбург, Тюмень, Самара, Нижний Новгород, Казань, Пермь, Уфа, Челябинск, Красноярск, Ханты-Мансийск, Иркутск, Курган, Оренбург, Омск, Томск, Барнаул, Новокузнецк, Кемерово, Абакан, Чита, Якутск, Южно-Сахалинск, Петропавловск-Камчатский и страны ближнего зарубежья: Белоруссия, Украина, Казахстан