Добро пожаловать на http://vipplan.ru

Випплан Коркино - это тысячи проектов домов в нашем каталоге!

Вы всегда сможете найти для себя проект дома вашей мечты! Даже если этого не случилось, мы готовы в любую минуту предложить проект индивидуального дома.

Забыли пароль?
Вы еще не регистрировались?

Перейдите по ссылке ниже на страницу регистрации.

Регистрация...

Внимание!!!

В проектную документацию могут быть внесены изменения любой сложности, в соответствии в Вашими пожеланиями!

Полезные статьи

Утепление стен дома изнутри

Утепление стен дома изнутри – это не правильный метод теплоизоляции помещения и используется в самом крайнем случае, когда других вариантов уже не остается. Как правило, утепление стен изнутри выполняется по незнанию или вынужденно, поскольку, теплоизоляция внутренних помещений дома другим способом невозможна. Вопросы теплоизоляции необходимо решать на стадии проектирования дома или коттеджа, а не тогда когда дом уже построен и приходится исправлять совершенные ошибки по факту....

Приготовление раствора для наливного пола

Если вы хотите чтобы пол получился ровным, наливные полы – лучший вариант. Особое внимание следует уделить приготовлению раствора. А все потому, что после нанесения на цементную стяжку или бетонное основание внести коррективы или изменить что-либо уже не получится. Поэтому к замешиванию раствора стоит подходить очень внимательно....

Проекты домов и коттеджей > Каталог проектов домов > Двухэтажный дом с цоколем, гаражом, террасой и балконом Vg2515

Двухэтажный дом с цоколем, гаражом, террасой и балконом Vg2515

Двухэтажный дом с цоколем, гаражом, террасой и балконом
Зарегистрируйтесь

Проект № Vg2515


Техническое описание
Общая площадь: 362 м2
Жилая площадь: 213.46 м2
Высота здания: 9.72 м
Размеры дома: 18.34м×15.74м
Кол-во комнат: 10
Цокольный этаж: есть
Гараж: нет
Мансарда: нет

Kонструкция
Материал стен: material_mon

Архитектурный раздел
Конструктивный раздел
АР+КР - 92 000 (Со скидкой 20%)
Двухэтажный дом с цоколем, гаражом, террасой и балконом с размерами здания 18,34х15,74 м. Наружная отделка здания – штукатурка и фасадная доска. Фундамент – монолитная ж/б лента. Наружные стены – газобетонные блоки, утеплитель минеральная вата. Внутренние стены – газобетонные блоки. Перегородки – газобетонные блоки. Пол цоколя - по грунту. Перекрытия межэтажные - монолитные ж/б. Чердачное перекрытие - по деревянным балкам. Крыша многоскатная. Кровля – битумная черепица. Окна — металлопластиковые.
Генплан застройки участка / Паспорт проекта 7000 руб / 10000 руб
Инженерный раздел (полный) 181000 руб
Смета на строительство 90500 руб
Теплотехнический расчет материалов стен Бесплатно
Стоимость проекта со незначительнми изменениями 105950 руб
Стоимость проекта со средними изменениями* 133100 руб
Стоимость проекта со значительными изменениями** 140300 руб

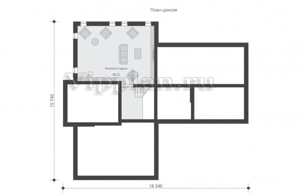
План цокольного этажа


Комната — 49,12 м2

План первого этажа


Тамбур — 3,84 м2
Холл — 13,91 м2
Гардероб — 8,40 м2
Кабинет — 12,60 м2
С/у — 4,93 м2
Кухня — 12,82 м2
Спортзал — 31,82 м2
Гараж — 15,84 м2
Бойлерная — 6,76 м2
Коридор — 5,50 м2
С/у — 2,29 м2

Двухэтажный дом с цоколем, гаражом, террасой и балконом

Двухэтажный дом с цоколем, гаражом, террасой и балконом

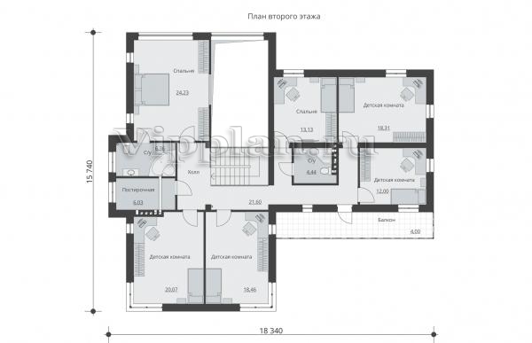
План второго этажа


Холл — 21,60 м2
Детская — 18,46 м2
Детская — 20,07 м2
Постирочная — 6,03 м2
С/у — 6,36 м2
Спальня — 24,23 м2
Спальня — 13,13 м2
Детская — 18,31 м2
Детская — 12,00 м2
С/у — 4,44 м2
Балкон — 4,00 м2
Двухэтажный дом с цоколем, гаражом, террасой и балконом Двухэтажный дом с цоколем, гаражом, террасой и балконом Двухэтажный дом с цоколем, гаражом, террасой и балконом Двухэтажный дом с цоколем, гаражом, террасой и балконом
Внесение изменений и привязка к участку строительства

В любой из проектов от компании VIPplan - Коркино по вашему желанию могут быть внесены изменения в материалы стен, материалы наружной отделки дома, а также будет произведена адаптация проекта под конкретный регион строительства (с учетом грунтов региона, геологических особенностей вашего участка и местных климатических условий) - БЕСПЛАТНО !!! (кроме проектов со скидкой и проектов наших партнеров).

Любой из проектов, размещенных на сайте korkino.vipplan.ru мы можем выполнить из требуемых вам строительных материалов: ячеистый бетон (газобетон, пеноблок), керамоблок, кирпич, шлакоблок, бетонный блок, дерево (брус, клееный брус), каркасная технология (деревянный каркас, металлокаркас (ЛСТК)).

Фасад дома и его наружную отделку так же возможно выполнить с применением различных облицовочных материалов: структурной штукатурки, (с утеплителем и без), сайдингом (пластиковый или металлосайдинг), фиброплитами, кирпича.

 
6 Избранные
проекты

Доставка проектов по России: Москва (Московская область), Санкт-Петербург (Ленинградская область), Краснодар, Ростов-на-Дону, Ставрополь, Сочи, Волгоград, Новосибирск, Белгород, Брянск, Воронеж, Саратов, Хабаровск, Астрахань, Нальчик, Владикавказ, Екатеринбург, Тюмень, Самара, Нижний Новгород, Казань, Пермь, Уфа, Челябинск, Красноярск, Ханты-Мансийск, Иркутск, Курган, Оренбург, Омск, Томск, Барнаул, Новокузнецк, Кемерово, Абакан, Чита, Якутск, Южно-Сахалинск, Петропавловск-Камчатский и страны ближнего зарубежья: Белоруссия, Украина, Казахстан