Добро пожаловать на http://vipplan.ru

Випплан Коркино - это тысячи проектов домов в нашем каталоге!

Вы всегда сможете найти для себя проект дома вашей мечты! Даже если этого не случилось, мы готовы в любую минуту предложить проект индивидуального дома.

Забыли пароль?
Вы еще не регистрировались?

Перейдите по ссылке ниже на страницу регистрации.

Регистрация...

Внимание!!!

В проектную документацию могут быть внесены изменения любой сложности, в соответствии в Вашими пожеланиями!

Полезные статьи

Выбор проекта дома в Коркине. Типовой или индивидуальный?

Строительство дома начинается с выбора проекта. От него будет зависит удобство, комфорт и функциональность Вашего будущего дома. Какой проект выбрать? В каталоге проектов домов VIPplan Коркино предоставлен огромный выбор проектов на любой вкус и кошелек. В итоге выбор сводится к покупке типового проекта дома или заказа индивидуального проекта. Для упращения задачи, расскажем о каждом варианте по отдельности...

Зачем нужен проект дома?

Зачем нужен проект? - спросите вы. Проект дома является важной и неотъемлемой частью при строительстве дома. После покупки проекта, вы получите разрешение на строительство, предоставив его в местную архитектуру, а после, с его помощью, построите дом....

Проекты домов и коттеджей > Каталог проектов домов > Двухэтажный дом с просторной гостиной, террасой и пятью спальнями Vg3695

Двухэтажный дом с просторной гостиной, террасой и пятью спальнями Vg3695

Двухэтажный дом с просторной гостиной, террасой и пятью спальнями
Зарегистрируйтесь

Проект № Vg3695


Техническое описание
Общая площадь: 176 м2
Жилая площадь: 116.75 м2
Высота здания: 9.94 м
Размеры дома: 14.37м×14.02м
Кол-во комнат: 6
Цокольный этаж: нет
Гараж: нет
Мансарда: нет

Kонструкция
Фундамент: монолитная плита
Перекрытия: сборные плиты, деревянные балки
Материал стен: Газобетон

Архитектурный раздел
Конструктивный раздел
Инженерный раздел
АР+КР - 60 000 (Со скидкой 20%)
АР+КР+ИР - 121 600 (Со скидкой 50%)
Проект двухэтажного дома с просторной гостиной, террасой и пятью спальнями с размерами здания 14,37 х 14,02 м. Фундамент – монолитная ж/б плита под всей площадью дома (мелкозаглубленная). Наружные стены – газобетонные блоки с утеплением минеральнй ватой и отделкой штукатуркой. Внутренние стены – газобетонные блоки. Перегородки – кирпичные. Пол 1 этажа – по монолитной плите. Межэтажное перекрытие – сборные плиты. Чердачное перекрытие – деревянные балки с теплошумоизоляцией в межбалочном пространстве. Лестница – монолитная ж/б. Крыша четыреххскатная. Кровля – металлочерепица. Окна — металлопластиковые.
Генплан застройки участка / Паспорт проекта 7000 руб / 10000 руб
Инженерный раздел (полный) 61600 руб (88000 руб)
Смета на строительство 44000 руб
Теплотехнический расчет материалов стен Бесплатно
Стоимость проекта со незначительнми изменениями 70600 руб
Стоимость проекта со средними изменениями* 83800 руб
Стоимость проекта со значительными изменениями** 87300 руб

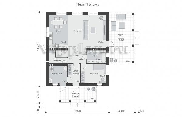
План первого этажа


Тамбур - 5,94 м2
Бойлерная - 8,08 м2
Холл - 7,08 м2
Кладовая - 3,65 м2
Кухня - 15,62 м2
Гостиная - 31,22 м2
С/у - 5,86 м2
Спальня - 12,17 м2

Двухэтажный дом с просторной гостиной, террасой и пятью спальнями

Двухэтажный дом с просторной гостиной, террасой и пятью спальнями

План второго этажа


Холл - 5,90 м2
Спальня - 18,11 м2
Спальня - 28,10 м2
Спальня - 14,78 м2
Спальня - 12,37 м2
С/у - 3,82 м2
С/у - 3,30 м2
Двухэтажный дом с просторной гостиной, террасой и пятью спальнями Двухэтажный дом с просторной гостиной, террасой и пятью спальнями Двухэтажный дом с просторной гостиной, террасой и пятью спальнями Двухэтажный дом с просторной гостиной, террасой и пятью спальнями

Модификации проектов

Внесение изменений и привязка к участку строительства

В любой из проектов от компании VIPplan - Коркино по вашему желанию могут быть внесены изменения в материалы стен, материалы наружной отделки дома, а также будет произведена адаптация проекта под конкретный регион строительства (с учетом грунтов региона, геологических особенностей вашего участка и местных климатических условий) - БЕСПЛАТНО !!! (кроме проектов со скидкой и проектов наших партнеров).

Любой из проектов, размещенных на сайте korkino.vipplan.ru мы можем выполнить из требуемых вам строительных материалов: ячеистый бетон (газобетон, пеноблок), керамоблок, кирпич, шлакоблок, бетонный блок, дерево (брус, клееный брус), каркасная технология (деревянный каркас, металлокаркас (ЛСТК)).

Фасад дома и его наружную отделку так же возможно выполнить с применением различных облицовочных материалов: структурной штукатурки, (с утеплителем и без), сайдингом (пластиковый или металлосайдинг), фиброплитами, кирпича.

 
6 Избранные
проекты

Доставка проектов по России: Москва (Московская область), Санкт-Петербург (Ленинградская область), Краснодар, Ростов-на-Дону, Ставрополь, Сочи, Волгоград, Новосибирск, Белгород, Брянск, Воронеж, Саратов, Хабаровск, Астрахань, Нальчик, Владикавказ, Екатеринбург, Тюмень, Самара, Нижний Новгород, Казань, Пермь, Уфа, Челябинск, Красноярск, Ханты-Мансийск, Иркутск, Курган, Оренбург, Омск, Томск, Барнаул, Новокузнецк, Кемерово, Абакан, Чита, Якутск, Южно-Сахалинск, Петропавловск-Камчатский и страны ближнего зарубежья: Белоруссия, Украина, Казахстан