Добро пожаловать на http://vipplan.ru

Випплан Коркино - это тысячи проектов домов в нашем каталоге!

Вы всегда сможете найти для себя проект дома вашей мечты! Даже если этого не случилось, мы готовы в любую минуту предложить проект индивидуального дома.

Забыли пароль?
Вы еще не регистрировались?

Перейдите по ссылке ниже на страницу регистрации.

Регистрация...

Внимание!!!

В проектную документацию могут быть внесены изменения любой сложности, в соответствии в Вашими пожеланиями!

Полезные статьи

Выбор сайдинга

Прежде чем купить сайдинг, нужно определиться зачем он нужен: для защиты фасада от непогоды, для придания привлекательности внешнему виду дома или для утепления дома.Что же из себя представляет сайдинг? Сайдинг – это материал для облицовки фасада из компаунда. В данной статье мы поможем Вам определиться выбором сайдинга для отделки фасада дома...

Купить готовый проект дома или заказать индивидуальный?

Перед началом строительства дома возникает необходимость в проекте дома и тут встает вопрос: Купить готовый проект дома или заказать индивидуальный на заказ? Каждый из вариантов по своему хорош и имеет как свои плюсы так и минусы...

Проекты домов и коттеджей > Каталог проектов домов > Проект дома с мансардой Vg1004

Проект дома с мансардой Vg1004

Проект дома с мансардой
Зарегистрируйтесь

Проект № Vg1004


Техническое описание
Общая площадь: 137 м2
Жилая площадь: 117 м2
Высота здания: 9 м
Размеры дома: 10м×10м
Кол-во комнат: 5
Цокольный этаж: нет
Гараж: нет
Мансарда: есть

Kонструкция
Фундамент: Ленточный монолитный ж/б
Перекрытия: Деревянные балки
Материал стен: Газобетон

Архитектурный раздел
Конструктивный раздел
Инженерный раздел
АР+КР - 52 000 (Со скидкой 20%)
АР+КР+ИР - 99 950 (Со скидкой 50%)
Проект индивидуального одноэтажного жилого дома с мансардой размерами здания 9,54 x 9.54 м. Наружная отделка здания : дикий камень. Фундамент – ленточный монолитный ж/б. Наружные стены: пенобетонные блоки , минеральная вата, фасадная штукатурка. Внутренние стены -пенобетонные блоки. Перегородки – пенобетонные бллоки и каркасные с ГКЛ . Снаружи вентканалы и дымоходы отделываются штукатуркой. Перемычки - монолитные и сварные из профиля проката. Пол первого этажа - пол по грунту. Пол мансарного этажа — по деревянным балкам Кровля — металлочерепица, двускатная. Окна - металлопластиковые, выполненные по индивидуальному заказу.
Генплан застройки участка / Паспорт проекта 7000 руб / 10000 руб
Инженерный раздел (полный) 47950 руб (68500 руб)
Смета на строительство 34250 руб
Теплотехнический расчет материалов стен Бесплатно
Стоимость проекта со незначительнми изменениями 61550 руб
Стоимость проекта со средними изменениями* 71900 руб
Стоимость проекта со значительными изменениями** 74600 руб

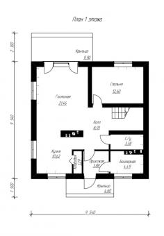
План первого этажа


Прихожая — 3,88 м2
Холл — 8,93 м2
Гостиная — 21,46 м2
Кухня — 10,62 м2
Кладовая — 1,29 м2
Спальня — 12,60 м2
С/у — 3,38 м2
Бойлерная — 4,49 м2

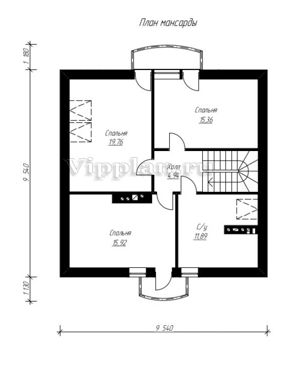
План мансардного этажа


Холл — 4,94 м2
Спальня — 15,36 м2
Спальня 19,76 м2
Спальня — 15,92 м2
С/у — 11,89 м2
Проект дома с мансардой Проект дома с мансардой Проект дома с мансардой Проект дома с мансардой

Модификации проектов

Внесение изменений и привязка к участку строительства

В любой из проектов от компании VIPplan - Коркино по вашему желанию могут быть внесены изменения в материалы стен, материалы наружной отделки дома, а также будет произведена адаптация проекта под конкретный регион строительства (с учетом грунтов региона, геологических особенностей вашего участка и местных климатических условий) - БЕСПЛАТНО !!! (кроме проектов со скидкой и проектов наших партнеров).

Любой из проектов, размещенных на сайте korkino.vipplan.ru мы можем выполнить из требуемых вам строительных материалов: ячеистый бетон (газобетон, пеноблок), керамоблок, кирпич, шлакоблок, бетонный блок, дерево (брус, клееный брус), каркасная технология (деревянный каркас, металлокаркас (ЛСТК)).

Фасад дома и его наружную отделку так же возможно выполнить с применением различных облицовочных материалов: структурной штукатурки, (с утеплителем и без), сайдингом (пластиковый или металлосайдинг), фиброплитами, кирпича.

 
6 Избранные
проекты

Доставка проектов по России: Москва (Московская область), Санкт-Петербург (Ленинградская область), Краснодар, Ростов-на-Дону, Ставрополь, Сочи, Волгоград, Новосибирск, Белгород, Брянск, Воронеж, Саратов, Хабаровск, Астрахань, Нальчик, Владикавказ, Екатеринбург, Тюмень, Самара, Нижний Новгород, Казань, Пермь, Уфа, Челябинск, Красноярск, Ханты-Мансийск, Иркутск, Курган, Оренбург, Омск, Томск, Барнаул, Новокузнецк, Кемерово, Абакан, Чита, Якутск, Южно-Сахалинск, Петропавловск-Камчатский и страны ближнего зарубежья: Белоруссия, Украина, Казахстан