Добро пожаловать на http://vipplan.ru

Випплан Коркино - это тысячи проектов домов в нашем каталоге!

Вы всегда сможете найти для себя проект дома вашей мечты! Даже если этого не случилось, мы готовы в любую минуту предложить проект индивидуального дома.

Забыли пароль?
Вы еще не регистрировались?

Перейдите по ссылке ниже на страницу регистрации.

Регистрация...

Внимание!!!

В проектную документацию могут быть внесены изменения любой сложности, в соответствии в Вашими пожеланиями!

Полезные статьи

Вентиляция в подвале дома

Без подвала или цокольного этажа в частном доме, в наше время, не обойтись. Это полезное для дома помещение должно быть хорошо вентилируемым. В доме с подвалом должна быть хорошая циркуляция воздуха, для сохранения находящихся в нем продуктов. Отсутствие вентиляции  может привести к образованию плесени и сырости не только в подвале, но и во всем доме....

Выбор бригады строителей в Коркине

Перед началом строительства дома перед будущим хозяином загородной недвижимости в Челябинской области обозначится несколько вариантов: обратиться в строительную компанию, специализирующуюся на малоэтажном коттеджном строительстве, воспользоваться услугами частной бригады; строить самому "своими руками"....

Проекты домов и коттеджей > Каталог проектов домов > Проект европейского загородного дома Vg2331

Проект европейского загородного дома Vg2331

Проект европейского загородного дома
Зарегистрируйтесь

Проект № Vg2331


Техническое описание
Общая площадь: 244.54 м2
Жилая площадь: 130.97 м2
Высота здания: 9.6 м
Размеры дома: 12.02м×11.02м
Кол-во комнат: 5
Цокольный этаж: нет
Гараж: нет
Мансарда: есть

Kонструкция
Фундамент: монолитная ж/б плита
Перекрытия: монолитная ж/б плита
Материал стен: Газобетон

Архитектурный раздел
Конструктивный раздел
Инженерный раздел
АР+КР - 64 000 (Со скидкой 20%)
АР+КР+ИР - 149 750 (Со скидкой 50%)
Проект индивидуального одноэтажного жилого дома с подвалом и мансардой с размерами здания 12,02 x 11,02 м. Наружная отделка здания – фасадная штукатурка. Фундамент – монолитная ж/б плита. Наружные стены – газобетонный блок с воздушным зазором, забутовочным кирпичом и отделкой фасадной штукатуркой. Внутренние стены – газобетонный блок. Перегородки – забутовочный кирпич. Пол подвала – пол по фундаментной плите. Межэтажные перекрытия – монолитное ж/б и металлические балки перекрытия. Крыша – двускатная. Кровля – металлочерепица. Окна – металлопластиковые. Лестница – металлическая.
Генплан застройки участка / Паспорт проекта 7000 руб / 10000 руб
Инженерный раздел (полный) 85750 руб (122500 руб)
Смета на строительство 61250 руб
Теплотехнический расчет материалов стен Бесплатно
Стоимость проекта со незначительнми изменениями 73850 руб
Стоимость проекта со средними изменениями* 92300 руб
Стоимость проекта со значительными изменениями** 97200 руб

План цокольного этажа


Холл — 6,1 кв м
Помещение1 — 18,04 кв м
Помещение2 — 18,3 кв м

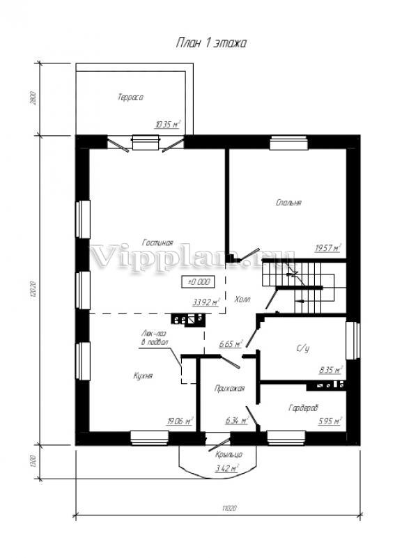
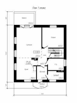
План первого этажа


Прихожая — 6,34 кв м
Холл — 6,65 кв м
С/у — 8,35 кв м
Гардероб — 5,95 кв м
Кухня — 19,06 кв м
Гостиная — 33,9 кв м
Спальня — 19,57 кв м

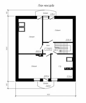
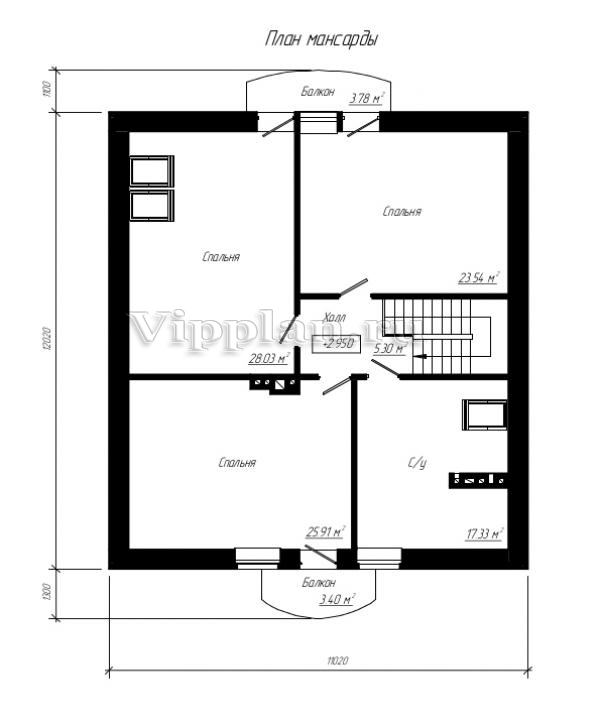
План мансардного этажа


Холл — 5,3 кв м
Спальня — 25,9 кв м

Спальня — 28,03 кв м
Спальня — 23,54 кв м
С/у — 17,33 кв м
Проект европейского загородного дома Проект европейского загородного дома Проект европейского загородного дома Проект европейского загородного дома

Модификации проектов

Внесение изменений и привязка к участку строительства

В любой из проектов от компании VIPplan - Коркино по вашему желанию могут быть внесены изменения в материалы стен, материалы наружной отделки дома, а также будет произведена адаптация проекта под конкретный регион строительства (с учетом грунтов региона, геологических особенностей вашего участка и местных климатических условий) - БЕСПЛАТНО !!! (кроме проектов со скидкой и проектов наших партнеров).

Любой из проектов, размещенных на сайте korkino.vipplan.ru мы можем выполнить из требуемых вам строительных материалов: ячеистый бетон (газобетон, пеноблок), керамоблок, кирпич, шлакоблок, бетонный блок, дерево (брус, клееный брус), каркасная технология (деревянный каркас, металлокаркас (ЛСТК)).

Фасад дома и его наружную отделку так же возможно выполнить с применением различных облицовочных материалов: структурной штукатурки, (с утеплителем и без), сайдингом (пластиковый или металлосайдинг), фиброплитами, кирпича.

 
6 Избранные
проекты

Доставка проектов по России: Москва (Московская область), Санкт-Петербург (Ленинградская область), Краснодар, Ростов-на-Дону, Ставрополь, Сочи, Волгоград, Новосибирск, Белгород, Брянск, Воронеж, Саратов, Хабаровск, Астрахань, Нальчик, Владикавказ, Екатеринбург, Тюмень, Самара, Нижний Новгород, Казань, Пермь, Уфа, Челябинск, Красноярск, Ханты-Мансийск, Иркутск, Курган, Оренбург, Омск, Томск, Барнаул, Новокузнецк, Кемерово, Абакан, Чита, Якутск, Южно-Сахалинск, Петропавловск-Камчатский и страны ближнего зарубежья: Белоруссия, Украина, Казахстан